Портфолио

Квартира на фрунзенской набережной 223м.кв.

Проект создавался для семьи с двумя детьми. Главной задачей было объединить две соседние квартиры в одно органичное пространство и учесть при этом все нужды хозяев. Второй и не менее важной задачей для заказчиков было создать модное и элегантное место, которое будет соответствовать их образу жизни.  После перепланировки в квартире удалось разместить 3 санузла, 3 гардеробных комнаты, гостиную-столовую, кухню с баром, спальню и 2 детских комнаты, а также отвести отдельное место для постирочной.
В интерьере использована стилистика mid-century modern и минимализма. Дизайн пространства получился слегка гламурным, но в то же время несколько брутальным, создавая прекрасный фон для частых вечеринок, которые так любят хозяева квартиры. Основные материалы проекта - это бетон, латунь, дерево и стекло.
Над проектом работали Татьяна Цукерман, Саляева Анна и Анна Марчюк.

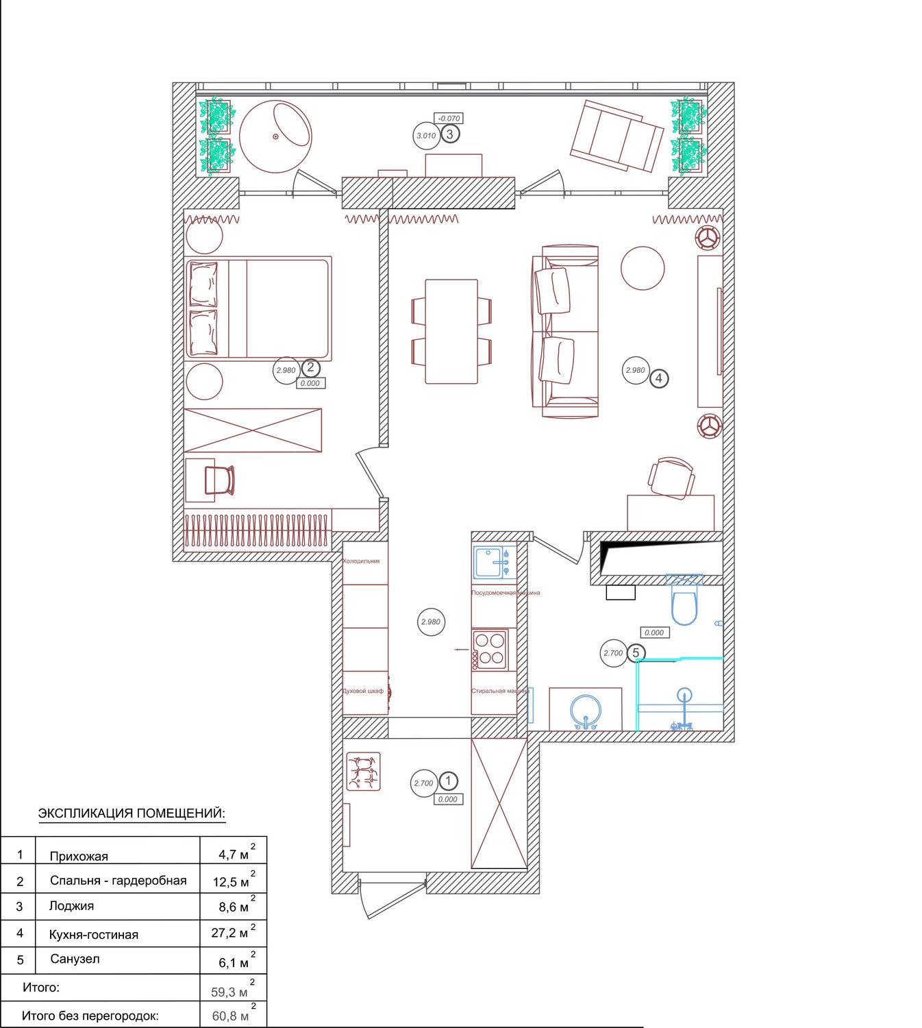
Дизайн-проект просторной трехкомнатной квартиры В Новогорске

Хозяевам этой просторной квартиры (113 м.кв.) -семейной паре со взрослой дочерью, хотелось получить современный и удобный интерьер с некоторыми элементами Ар-деко в американском прочтении этого стиля.
В квартире две большие спальни, одна из которых имеет собственную гардеробную комнату, просторная кухня-гостиная, два санузла, кладовая, и хоз. блок с постирочной, аккуратно разместившийся за дверьми гардеробной системы.
Натуральное дерево, мрамор, хрусталь, зеркала, изысканные формы предметов, наполняющих пространство, спокойная цветовая гамма, высокие окна в пол предают этому интерьеру торжественности, элегантности и утонченности. 

Уютная квартира в Москве для молодой семьи 150м.кв

Проект создавался для молодой семьи с ребенком. Главной задачей было спроектировать современное эстетичное пространство, соответствующее духу молодых людей и учесть при этом их бытовые потребности. Все три спальни в квартире имеют собственные полноценные санузлы, так же есть гостевой санузел, две гардеробные и отдельная постирочная.
Интерьер в стиле модернизм и наполнен теплыми природными оттенками, фактурами дерева и натурального камня. Множество световых решений позволяет преобразовывать пространство в зависимости от настроения и время суток.

Двухуровневая квартира в Зеленограде

Эта необычная квартира находится на последнем этаже нового жилищного комплекса. Необычна она прежде всего своими потолками около 5 метров, а так же и тем, что была создана путем объединения двух смежных квртир. Это придало пространству легкости объема и сделало возможным размещение всех необходимых функциональных зон.

Квартира для молодого человека в ЖК Виталити на Дубровке 57 м.кв

Проект для молодого человека с высоким темпом жизни, который ценит комфорт и эстетику. 
Интерьер в стиле модернизм и элементами брутализма, наполнен насыщенными природными оттенками и фактурами. Компактное, но продуманное и функциональное жилое пространство отвечает потребностям и привычкам своего хозяина.

Проекты пилотных номеров для Апарт-отеля в г.Жуковский

Перед Апарт-отелем стояла задача обновить свой номерной фонд и сделать это в соответствии с последними тенденциями в области гостиничного хозяйства.
Для гостиницы были разработаны пилотные проекты номеров "Люкс" и "Стандарт". При этом был учтен архитектурный облик здания. Планировка и техническое оснащение номеров теперь отвечает всем требованиям современного европейского отеля.

Концепт ресторана с кулинарной школой и магазином

Над проектом работали Татьяна Цукерман, Саляева Анна и Анна Марчюк.

Серебрянный бор

Заказчики проекта - молодая пара с малышом приобрели квартиру с завораживающим видом на Серебряный бор для спокойной и размеренной жизни. Семейная пара хотела светлую и уютную квартиру и функциональное пространство.
В квартире была проведена согласованная перепланировка, которая позволила значительно увеличить площадь санузла, организовать кладовую комнату на кухне и гардеробную в одной из спален.
Детская комната была организована с возможностью легкой трансформации комнаты малыша в комнату школьника. Лоджия превратилась в полноценное уютное рабочее место с зоной для отдыха или чтения.

Соколиный форт

Изначально квартира планировалась как арендная, но хозяйка, женщина с утонченным вкусом, не могла себе позволить сделать в ней все "спустя рукава". Поэтому она решила прибегнуть к моей помощи, и мы разработали проект с ограниченным бюджетом, но соответствующий уровню ЖК бизнес-класса в котором находится квартира. Планировку я постаралась сделать как можно более универсальной, чтобы в этой квартире было удобно и одинокому человеку, и паре.  Разместив кухонную зону в широком и малофункциональном коридоре, удалось превратить однокомнатную квартиру в полноценную двухкомнатную.
Визуальная подача проекта выполнена в технике "коллаж".